Monolocale in vendita

Roma, Via Di Torpignattara - Torpignattara
€ 110.000
1 locale 1 locale
36 Mq 36 Mq
1 bagno 1 bagno

Monolocale in vendita

Roma, Via Di Torpignattara - Torpignattara

Descrizione annuncio

USO INVESTIMENTO.

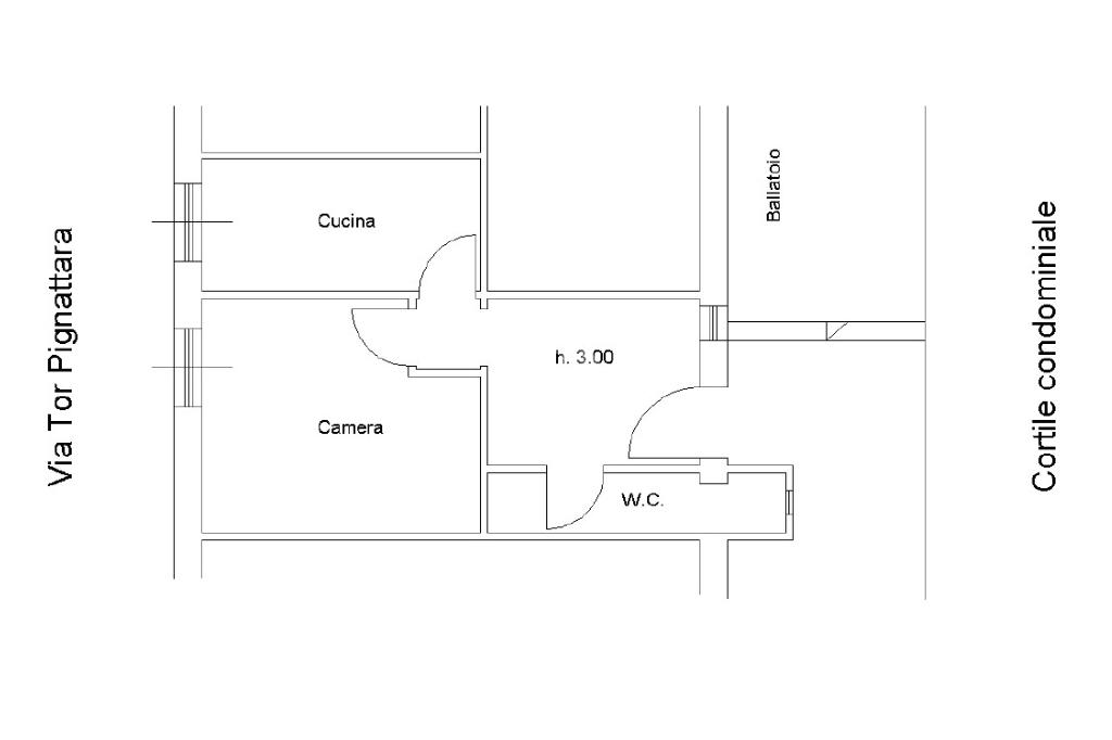
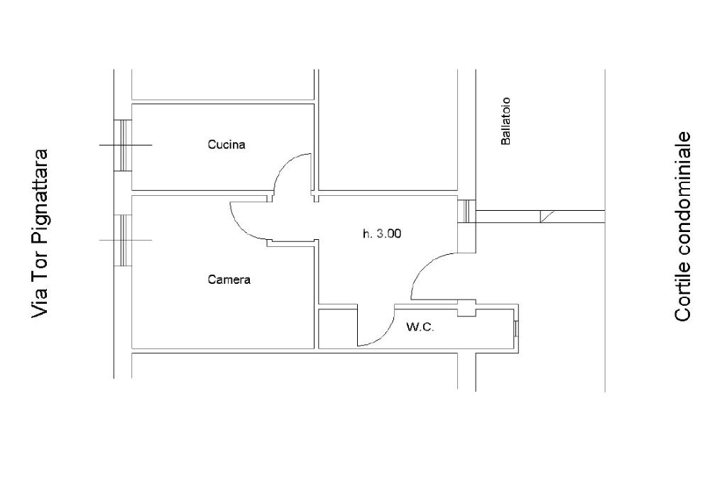
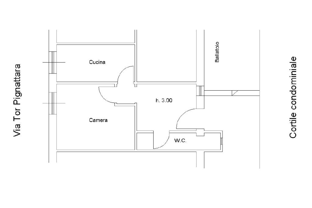
Nel cuore di Torpignattara, a Roma, è disponibile un monolocale in vendita, ideale per chi cerca un investimento sicuro. Situato al primo piano di un edificio storico del 1940 circa. L'immobile offre ambienti funzionali, è composto da ingresso, camera da letto, cucina e bagno. Il posto auto condominiale, comodità rara in questa zona, lo rende ancora più interessante.

L'aria condizionata garantisce comfort in ogni stagione. La posizione centrale e ben servita rende questo monolocale particolarmente interessante, con negozi, servizi e trasporti pubblici a pochi passi. Attualmente locato fino al 31 gennaio 2028, genera un reddito mensile di 500 euro, rappresentando un'opportunità di investimento con rendita immediata. Perfetto per chi desidera un immobile in una zona vivace e in continua crescita.

Mostra tutto

Nelle vicinanze

Trasporto pubblico Trasporto pubblico
Malatesta
Malatesta
900 m
Teano
Teano
1,3 Km
Torpignattara
Torpignattara
90 m
Filarete
Filarete
370 m
Torpignattara
Torpignattara
80 m
Ricariche auto elettriche Ricariche auto elettriche
Roma Appia | EnelX
1,6 Km
Eneldrive Autorimessa Primula
1,6 Km
Roma Ponte Lungo | EnelX
2,0 Km
Bici & Motori
2,6 Km
Eneldrive Magnagrecia
2,8 Km
Scuole Scuole
Scuola Primaria "Carlo Pisacane"
340 m
Scuole
660 m
Istituto comprensivo Alberto Manzi
870 m
Scuola Elementare Gianni Rodari
1,0 Km
Istituto Comprensivo Largo Volumnia - Plesso G. Cagliero
1,1 Km
Farmacia Farmacia
Farmacia
220 m
Alessandrina
300 m
Farmacia San Luca
490 m
Farmacia Fenice
660 m
Farmacia Costamagna
810 m
Ospedali Ospedali
Istituto delle Figlie di San Camillo - Ospedale M. G. Vannini
200 m
Pronto Soccorso Ospedale "Madre G. Vannini"
250 m
A.S.L. Roma C
1,0 Km
NCL
1,5 Km
Ospedali
1,8 Km
Supermercati Supermercati
Fresco Market
270 m
Tuodì
290 m
Carrefour Market
370 m
Il Castoro
770 m
sma
900 m
Negozi Negozi
Magazzini Gianni
40 m
Sultana Fashion
240 m
International Alimentari
260 m
Negozi
270 m
Forno Certosa
420 m
Bar Bar
Bar Roma
110 m
Bar
210 m
Pecchia
430 m
Bar Tong
510 m
Arca Dancing
930 m
Ristoranti Ristoranti
Fatti di farina
80 m
Bombay Curry
100 m
Sushi Sun Cafè
210 m
Il Ragioniere
370 m
Il Pomo d'Oro
390 m
Mostra tutto

Caratteristiche

Rif.:
61195693
Piano:
1 di 1 (Piano basso)
Posti auto:
1
Camere da letto:
1
Arredamento:
Assente
Condizionamento:
Autonomo
Mostra tutto
Prezzo Prezzo
€ 110.000
Rata mutuo Rata mutuo
€ 519 / mese
Spese annue Spese annue
€ 360
Proponi il tuo prezzoProponi il tuo prezzo

Classe Energetica

G
G
G
G
G
G
G
G
G
EP globale non rinnovabile:
175.00 kW h/m² anno
EP invernale del fabbricato:
EP estiva del fabbricato:
Anno di costruzione:
1940
Riscaldamento:
Autonomo
Tipo impianto:
A radiatori
Tipo alimentazione:
Metano

Ti interessa visionare l'immobile?

Fissa un appuntamento  Fissa un appuntamento

Richiedi informazioni

Clicca su Leggi per aprire l'informativa
* Questi campi sono obbligatori

Calcola il tuo mutuo

Semplice e senza impegno
Anticipo

( % )
Mutuo

( % )

pochi semplici passi

inserisci i tuoi dati
Questionario completato
Grazie per aver richiesto un appuntamento senza impegno con un nostro Consulente del Credito e Assicurativo.

Hai inserito correttamente tutti i dati necessari e a breve riceverai una e-mail con un link da convalidare per inviare i tuoi dati.
Affiliato
Immobiliare Torpignattara 2020 Srl
Via Di Torpignattara, 14 00177 Roma (RM)

Il nostro staff


  • Sara Latini
    Collaboratrice

  • Gianfranco Serio
    Affiliato

  • Sara Rigon
    Coordinatrice

  • Vincenzo Sorrentino
    Responsabile

  • Emanuele Vescovi
    Responsabile
Via Di Torpignattara, 14 00177 Roma (RM)
Zona: Torpignattara - Casilina
Mostra su mappa
Orari: dal lunedì al venerdì: 9.00 - 20.00; sabato: 9.00 - 18.00
Affiliato
Immobiliare Torpignattara 2020 Srl
Via Di Torpignattara, 14 00177 Roma (RM)

2026 Tecnocasa Franchising S.p.A. - P. IVA 08365160152 - Via Monte Bianco 60/A 20089 Rozzano (MI). Ogni agenzia ha un proprio titolare ed è autonoma. Privacy policy | Policy utilizzo | Cookie policy